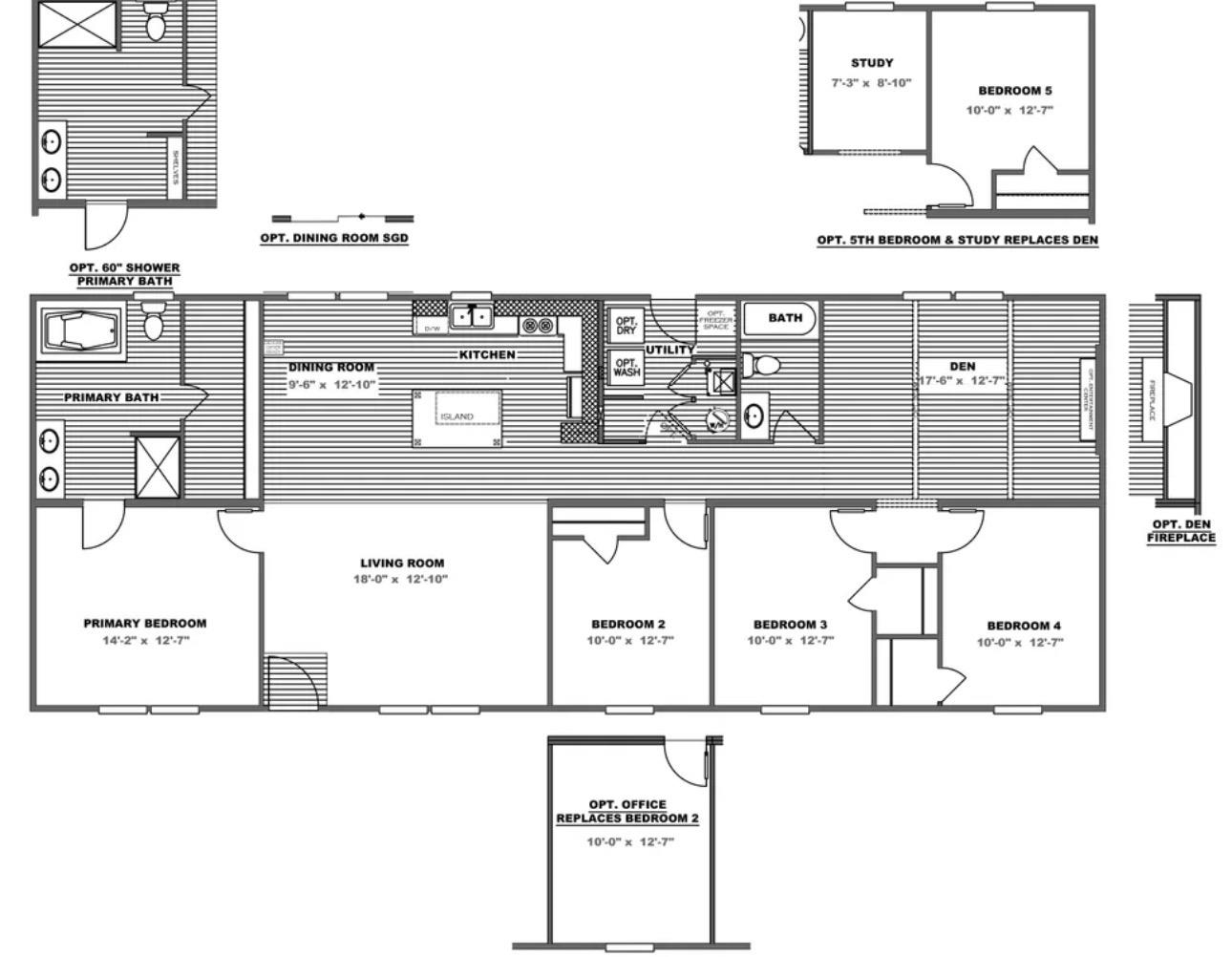
Stunning brand new Clayton Home featuring 1790 sq ft of living space. This 4-bedroom home (with potential for a 5th) includes 2 bathrooms and an additional family room. The kitchen boasts 42” overhead cabinets and Energy Star appliances. Relax by the white stone fireplace with mantel in the living area. Additional highlights include a 16’ dormer and a soon-to-be-installed concrete front porch. Enjoy energy efficiency with Low E windows (Argon gas) and Pfister faucets. This home is also solar energy ready! Perfect for the ideal buyer!
Schools
Elementary School: Meadow Lands Elementary School
Middle School: Daviess County Middle School
High School: DAVIESS COUNTY HIGH SCHOOL
L. Steve Castlen Realtors
